Farmhouse Plan 56911 – A Refined Country Craftsman Home with Timeless Style
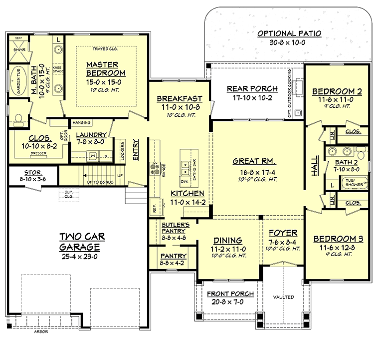
Farmhouse Plan 56911 captures the warmth of classic rural design with a modern twist, offering 2,073 square feet of living space, 3 bedrooms, 2 full baths, and a 2-car garage. This home brings together the best of both worlds—rustic architectural detail and contemporary comfort—with features like exposed timber beams, open-concept living, and an inviting outdoor kitchen. Designed for everyday livability and refined entertaining, this plan perfectly balances beauty and function.
The country craftsman façade immediately sets this home apart. The front porch, framed by thick timber columns with decorative trusses, creates a welcoming entryway that radiates character. Paired with an arbor accent over the garage and a combination of stone and siding, the exterior blends traditional farmhouse charm with refined craftsman detail. It’s a design equally suited for a wooded lot, lake property, or suburban neighborhood.
Inviting Entry and Grand First Impressions
Stepping through the front door, you’re welcomed into a foyer that flows directly into the open-concept main living area. Ten-foot ceilings expand the sense of space, while large windows flood the interior with natural light. The open layout promotes connection—ideal for families who love to entertain or gather together at day’s end. Warm wood tones, craftsman trim, and thoughtful details combine to create a home that feels both expansive and intimate.
The great room anchors the living space with a cozy fireplace that adds ambiance year-round. Its connection to the kitchen and dining area makes hosting effortless. Whether it’s a holiday dinner or a casual weekend gathering, this design encourages easy movement and conversation throughout the home.
The Heart of the Home – A Chef’s Kitchen with Butler’s Pantry
At the heart of Farmhouse Plan 56911 is a gourmet kitchen that truly elevates daily life. The large center island doubles as a prep area and casual dining spot, offering seating for friends and family to gather. Modern amenities meet timeless design through shaker cabinetry, quartz or butcher-block counters, and stylish pendant lighting that enhances the farmhouse aesthetic.
Behind the kitchen lies a butler’s pantry—a feature usually reserved for luxury homes. It provides extra counter space for serving, organizing, or staging meals, keeping the main kitchen clutter-free. For home cooks or entertainers, this addition transforms mealtime prep into a seamless experience. The adjacent dining area, framed by large windows, allows for comfortable, light-filled meals with views of the backyard or garden.
Outdoor Living and Entertaining
The connection between indoor and outdoor living defines this home’s design philosophy. Step through the back doors, and you’ll find a covered rear porch complete with an outdoor kitchen. Perfect for barbecues, family cookouts, or quiet evenings with a glass of wine, this space becomes an extension of the home. Add a dining set, lounge furniture, or even a built-in fireplace to complete the retreat.
This blend of open-air and sheltered outdoor space ensures you can enjoy your surroundings in any season. For those who love to host, the transition from kitchen to porch makes entertaining effortless and elegant.
Private Master Suite – A Personal Sanctuary
The master suite in Plan 56911 is a highlight of the design. Located on one side of the home for privacy, it features generous proportions and tranquil finishes. Large windows fill the space with light, while the ensuite bath offers true spa-like luxury. Dual vanities, a soaking tub, and a walk-in shower with seating provide all the comforts of a resort, right at home.
One of the plan’s most thoughtful details is the master closet’s direct access to the laundry room. This layout minimizes daily hassle and keeps the home organized—proof that practicality and luxury can go hand in hand.
Comfortable Secondary Bedrooms
Two additional bedrooms are positioned on the opposite side of the home, creating a split-bedroom layout that enhances privacy. Each room is spacious and filled with natural light, making them ideal for children, guests, or even a home office. They share a full bathroom that continues the craftsman aesthetic with modern fixtures and plenty of storage.
This efficient layout ensures everyone in the household enjoys their own comfortable space without sacrificing the home’s open flow or aesthetic harmony.
Bonus Room for Future Flexibility
Above the garage, a 430-square-foot bonus room adds flexibility for the future. It can be finished as a game room, media lounge, home office, or guest suite. Homeowners seeking long-term adaptability will appreciate how easily this space can evolve over time—perfect for changing needs or multigenerational living.
Even unfinished, the bonus room serves as valuable storage, keeping the rest of the home uncluttered. Combined with the spacious garage and built-in storage areas, this plan is both beautiful and practical.
Energy Efficiency and Modern Craftsmanship
Farmhouse Plan 56911 pairs traditional architecture with modern efficiency. The design supports multiple foundation options—slab, crawlspace, or basement—making it adaptable to a variety of lots and regions. The use of 2×6 exterior walls allows for added insulation and long-term durability, while simple rooflines streamline construction and help control costs.
Homeowners can personalize finishes to match their tastes—from classic white board-and-batten siding to deeper, earthy tones that highlight the craftsman details. No matter the customization, this home retains its timeless appeal and strong curb presence.
A Perfect Balance of Comfort, Character, and Craft
Farmhouse Plan 56911 is ideal for those who appreciate architectural detail paired with everyday livability. Its thoughtful layout, high ceilings, and open gathering spaces create an atmosphere that’s both elegant and relaxed. Whether you’re cooking in the butler’s pantry, entertaining outdoors, or unwinding in the master suite, every square foot serves a purpose.
For families, couples, or retirees seeking a country craftsman home that combines modern luxury with timeless design, Plan 56911 delivers charm, efficiency, and long-lasting value—all in a beautifully balanced package.
👉 View Plan 56911 here to see floor plans, renderings, and customization options for your next dream build.





Leave a Reply