Modern Farmhouse Plan 75180 Offers Split-Bedroom Comfort and Flexible Family Living
A well-designed Modern Farmhouse Plan should feel warm, practical, and easy to live in from the first day forward. House Plan 75180 does exactly that. It combines the timeless charm of farmhouse architecture with the layout features many buyers want now, including open gathering spaces, a private primary suite, a separate bedroom wing, and an optional bonus room that adds long-term flexibility.
With 2,690 square feet on the main level, this single-story ranch-style home includes 4 bedrooms, 3.5 baths, a side-entry 2-car garage, and a covered rear porch designed for everyday enjoyment. It is large enough to support family life comfortably, but it is also organized in a way that feels efficient and intentional rather than oversized.
That balance is what makes this Modern Farmhouse Plan especially appealing. It offers spacious living without sacrificing warmth, and it gives each part of the home a clear role in daily life.
A Farmhouse Exterior with Lasting Curb Appeal
The exterior of Plan 75180 reflects the kind of curb appeal buyers continue to seek in a farmhouse design. The front elevation feels balanced and welcoming, with proportions that give the house presence without making it feel too formal. A side-entry garage helps preserve the visual appeal of the front façade, which is a detail many homeowners appreciate when choosing a forever home.
The steep roof pitch reinforces the farmhouse look and gives the home a more distinctive silhouette. At nearly 80 feet wide, the house has a broad footprint, but the massing remains attractive and approachable. This is the type of design that looks equally comfortable in a rural setting, a suburban neighborhood, or on a larger estate lot.
Strong curb appeal matters because it shapes how the home feels before anyone even steps inside. This Modern Farmhouse Plan makes a confident first impression while still feeling relaxed and livable.
A Foyer That Opens the Home Gracefully
The entry sequence helps set the tone. As you step through the front door, the foyer opens toward the great room and immediately creates a sense of volume and welcome. This kind of arrival matters in a home with an open layout. It gives the house a sense of structure and direction without making the design feel boxed in.
A formal dining room sits just off the main living area, giving the layout a dedicated entertaining space for holidays, celebrations, and family dinners. That room adds flexibility because it can serve a special purpose without interrupting the openness of the core living areas.
An Open Great Room That Feels Bright and Comfortable
The great room is the social center of this Modern Farmhouse Plan. It is designed to feel spacious, but not cold. Large rear-facing windows and sliding doors bring in natural light and connect the room to the covered porch, which makes the living area feel even more expansive.
A fireplace adds warmth and visual focus, helping the room feel grounded. In a large open home, a fireplace often does more than provide ambiance. It also gives furniture a natural orientation and helps define the room’s identity.
Because the great room stays open to the kitchen and nearby dining spaces, it supports the way many families actually live. People can cook, relax, talk, and move around the house without feeling separated.
A Kitchen Designed for Workflow and Entertaining
The kitchen is one of the strongest features in this plan. A large center island anchors the room and gives homeowners substantial prep space, casual seating, and a natural place for conversation. In today’s homes, the island often becomes the real center of daily life, and this one is sized to handle that role well.
The butler’s walk-in pantry adds another layer of practicality. It improves the kitchen’s workflow and gives you room for storage, staging, and organization. That matters even more in an open plan, where clutter is easier to see and harder to hide.
For buyers evaluating a Modern Farmhouse Plan, kitchen function matters just as much as style. Here, the layout supports serious everyday use while still feeling attractive and well integrated into the home.
A Split-Bedroom Layout That Prioritizes Privacy
One of the most practical elements in this design is the split-bedroom arrangement. The primary suite sits on its own side of the house, which creates a quieter and more private retreat for the homeowners. On the opposite side, three secondary bedrooms form a separate wing for children, guests, or extended family.
This layout is useful because it supports both family life and hospitality. Parents can enjoy a more peaceful private suite, while guests or children have their own area that still feels connected to the rest of the home. That kind of separation often improves how a house functions day to day.
For larger families, this feature alone can make a major difference. It helps reduce noise and supports a better balance between shared and private space.
A Primary Suite Built for Everyday Ease
The primary suite is designed to feel restful and well connected to daily routines. The bathroom is spacious, and the oversized walk-in closet offers the kind of storage buyers expect in a modern family home. One of the most convenient features is the direct walk-through access from the closet to the laundry room.
That small design choice improves daily life more than many buyers realize at first. It simplifies laundry, supports better organization, and keeps practical routines moving smoothly. In a Modern Farmhouse Plan, comfort often comes from these kinds of thoughtful details.
Secondary Bedrooms and Jack and Jill Functionality
The secondary bedroom wing is arranged to support flexibility and convenience. With three additional bedrooms and multiple bath options, the house can handle family members and guests without strain. A Jack and Jill bathroom adds another layer of practicality, especially for children or shared guest use.
Each bedroom has enough space to function well over time, which is important in a house meant to serve as a long-term home. The rooms are not oversized for show. They are sized for real use, which is exactly what buyers should want.
Covered Rear Porch Adds Daily Lifestyle Value
The covered rear porch gives this plan another strong advantage. It extends the living area outdoors and creates room for dining, relaxing, or entertaining throughout much of the year. Because the great room and rear-facing glass connect directly to this porch, the transition feels natural rather than forced.
That outdoor space is especially valuable in farmhouse design. Buyers often want a strong relationship between the house and the land around it. This porch helps create that relationship in a very usable way.
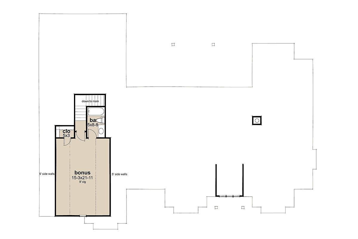
The Optional Bonus Room Adds Long-Term Flexibility
Above the garage, the optional 442-square-foot bonus room gives homeowners another layer of flexibility. This space can be finished as a playroom, media room, fitness room, guest suite, or even a quiet office away from the busier parts of the house.
Bonus spaces are especially valuable because they allow a home to evolve. Family needs change over time. A room like this helps the house adapt without requiring a major future renovation.
Why Modern Farmhouse Plan 75180 Stands Out
House Plan 75180 succeeds because it combines classic farmhouse character with practical modern planning. The open main living area works for entertaining and everyday family life. The split-bedroom layout improves privacy. The pantry, mudroom, and laundry access all add real convenience. The porch and optional bonus room expand the home’s value over time.
For buyers looking for a Modern Farmhouse Plan that feels livable, stylish, and flexible, this design offers a very strong combination of features. It is large enough to feel generous, but organized well enough to stay comfortable and easy to manage.
Ready to see full plan details, pricing, and available options?
View House Plan 75180 on FamilyHomePlans.com and purchase the plan here.





Leave a Reply